CONTACTO
CONTACTO
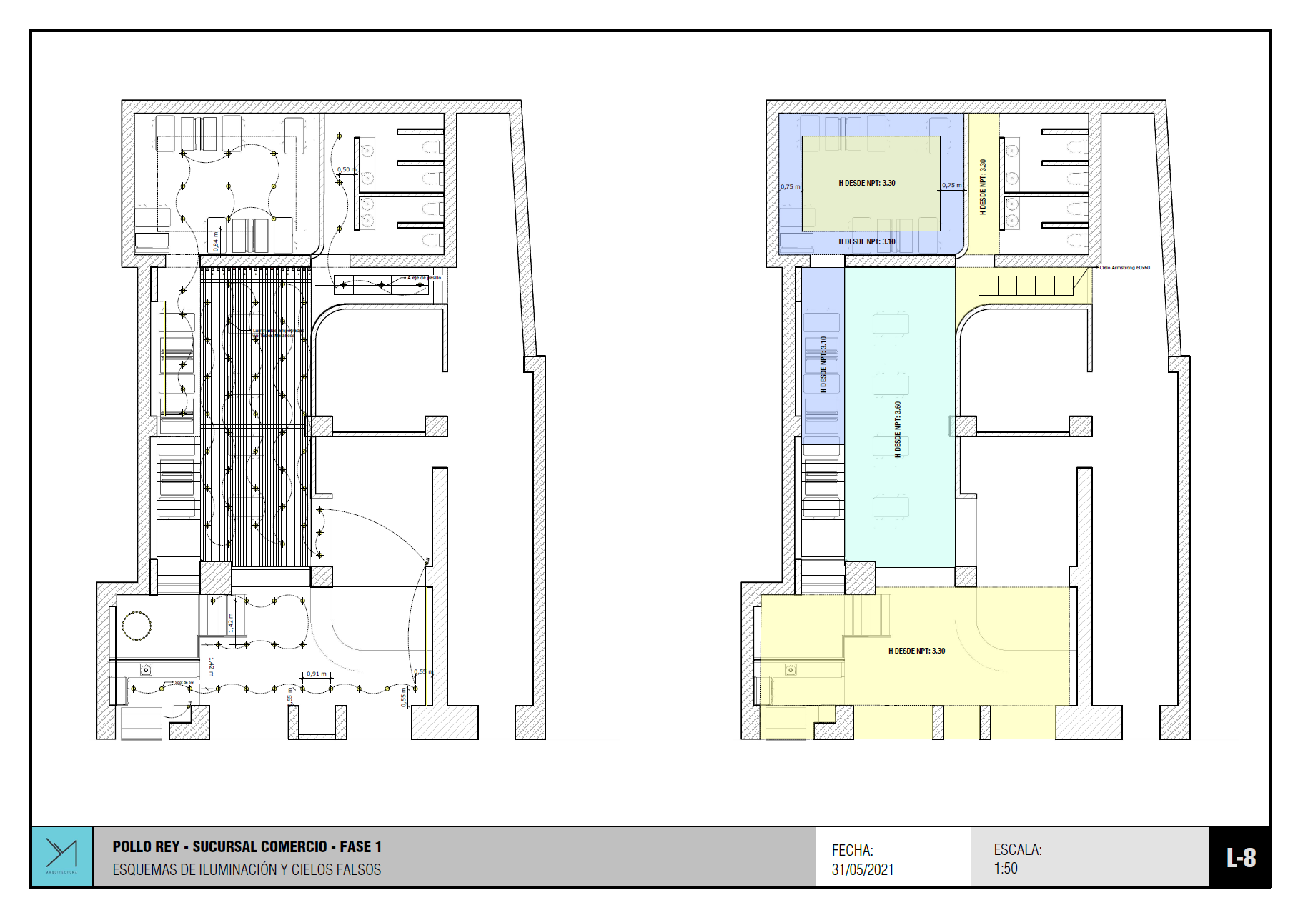
SUCURSAL POLLO REY COMERCIO
Comercial
Se nos dio el encargo de Renovar la imagen del reconocido Restaurant Pollo Rey en su nueva Sucursal de la calle Comercio, realizamos el diseño y supervisión.
OBRA CONCLUIDA
.
You may also like
Remodelación pabellón principal Colegio San Ignacio
2021
RESTAURANT POLLOS GLORIA
2022
ISLA DE COMIDA RÁPIDA "PATATA REPUBLIC"
2021
ELEMENTAL - TIKI & LOUNGE
2021
DISEÑO INTERIOR DEPTO. REYES
2020
ESTUDIO JURÍDICO COLOZA (SANTA CRUZ)
2024
EDIFICIO ROJAS
2021
AMPLIACIÓN Y REMODELACIÓN PARRILLERO FLIA. FONSECA
2019
ISLA ECLIPSE
2021
SHOWROOM MAYHEM CBBA
2023
↑
Back to Top